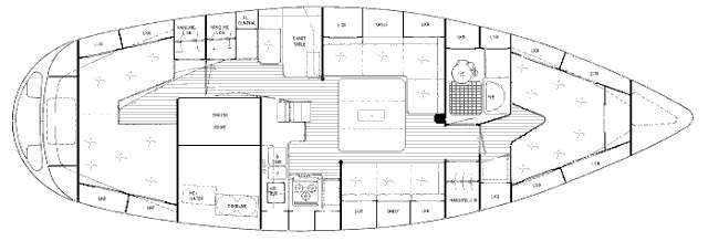
Hallberg Rassy 36

Informationen zur Rassy 36 gibt es viele. Um eine Übersicht zu erhalten finden Sie hier den Einrichtungsplan.